Sie wollen die Grundrisse detaillierter anschauen? Sie finden diese hochaufgelöst im PDF Siegerprojekt «Janus»
Sockel- und Erdgeschoss

Sockelgeschoss

Erdgeschoss
Obergeschosse

1. Obergeschoss

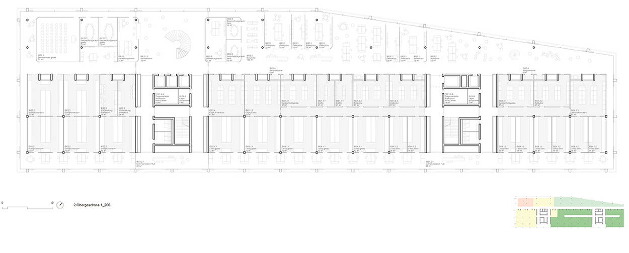
2. Obergeschoss

3. Obergeschoss

4. Obergeschoss

5. Obergeschoss

6. Obergeschoss
Unter- und Zwischengeschosse

1. Untergeschoss

1. Zwischengeschoss

2. Untergeschoss

2. Zwischengeschoss

3. Untergeschoss
Seite teilen